

METZ – QUEULEU
Magnifique T5 neuf à Metz au dernier niveau (R+2) de la résidence avec terrasse. L’appartement se constitue d’une partie séjour avec cuisine semi-ouverte, s’ouvrant sur une terrasse par une baie coulissante. Le séjour s’ouvre sur une seconde terrasse accessible par deux baies coulissantes. Cet appartement comprend quatre belles chambres, dont une suite parentale comprenant dressing et salle d’eau qui s’ouvre sur la terrasse principale, une salle d’eau avec douche à l’italienne, un meuble lavabo, toilettes séparées et cellier. Il dispose d’une cave, d’un emplacement vélo ainsi que de deux places de stationnement au sous-sol de la résidence.

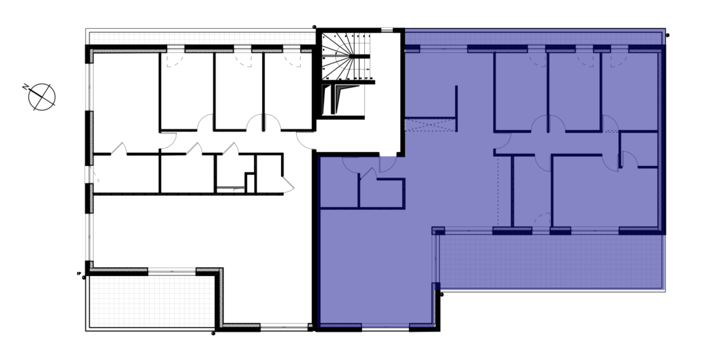
METZ – QUEULEU
Magnifique T5 au dernier niveau (R+2) de la résidence avec terrasse. L’appartement se constitue d’une partie séjour avec cuisine semi-ouverte, s’ouvrant sur une terrasse par une baie coulissante. Le séjour s’ouvre sur une seconde terrasse accessible par deux baies coulissantes. Cet appartement comprend quatre belles chambres, dont une suite parentale comprenant dressing et salle d’eau qui s’ouvre sur la terrasse principale, une salle d’eau avec douche à l’italienne, un meuble lavabo, toilettes séparées et cellier. Il dispose d’une cave, d’un emplacement vélo ainsi que de deux places de stationnement au sous-sol de la résidence.
2ème étage
110,90 m²
Terrasses 34 m²
Local à vélo
Parking en sous-sol en sus



