

METZ – QUEULEU
Très beau T5 neuf à Metz au dernier niveau (R+2) de la résidence avec deux terrasses. L’appartement se constitue d’une partie séjour avec cuisine ouverte, s’ouvrant sur la terrasse par une baie coulissante. Cet appartement comprend quatre belles chambres, dont une suite parentale, donnant toutes quatre sur une terrasse, deux salles d’eau avec douche à l’italienne, un meuble lavabo, toilettes séparées et cellier. Il dispose d’une cave, d’un emplacement vélo ainsi que de deux places de stationnement au sous-sol de la résidence.

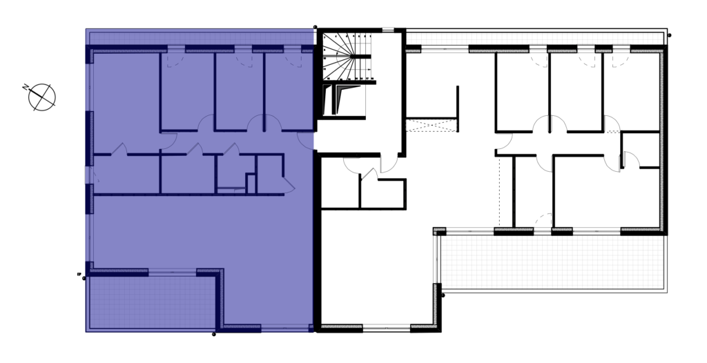
METZ – QUEULEU
Très beau T5 neuf à Metz, au dernier niveau (R+2) de la résidence avec deux terrasses. L’appartement se constitue d’une partie séjour avec cuisine ouverte, s’ouvrant sur la terrasse par une baie coulissante. Cet appartement comprend quatre belles chambres, dont une suite parentale, donnant toutes quatre sur une terrasse, deux salles d’eau avec douche à l’italienne, un meuble lavabo, toilettes séparées et cellier. Il dispose d’une cave, d’un emplacement vélo ainsi que de deux places de stationnement au sous-sol de la résidence.
2ème étage
202,70 m²
Terrasses 47,60 m²
Local à vélo
Parking en sous-sol en sus



