Les terrasses du Roi Albert proposent, au cœur de Metz Queuleu, des appartements neufs bien agencés, des prestations de qualité et une situation qui contribueront au succès de votre investissement et de votre collaboration avec HAUPLO.

Les terrasses du Roi Albert proposent, au cœur de Metz Queuleu, des appartements neufs bien agencés, des prestations de qualité et une situation qui contribueront au succès de votre investissement et de votre collaboration avec HAUPLO.

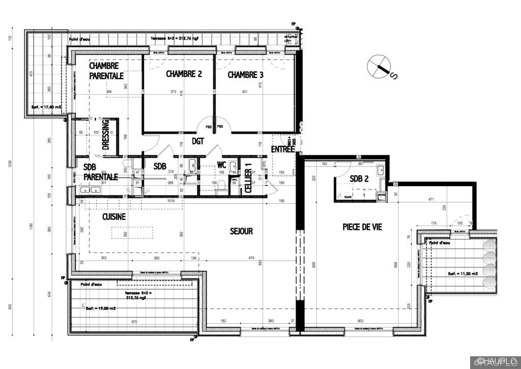
Très beau T5 neuf à Metz au dernier niveau (R+2) de la résidence avec deux terrasses. L’appartement se constitue d’une partie séjour avec cuisine ouverte, s’ouvrant sur la terrasse par une baie coulissante. Cet appartement comprend quatre belles chambres, dont une suite parentale, donnant toutes quatre sur une terrasse, deux salles d’eau avec douche à l’italienne, un meuble lavabo, toilettes séparées et cellier. Il dispose d’une cave, d’un emplacement vélo ainsi que de deux places de stationnement au sous-sol de la résidence.

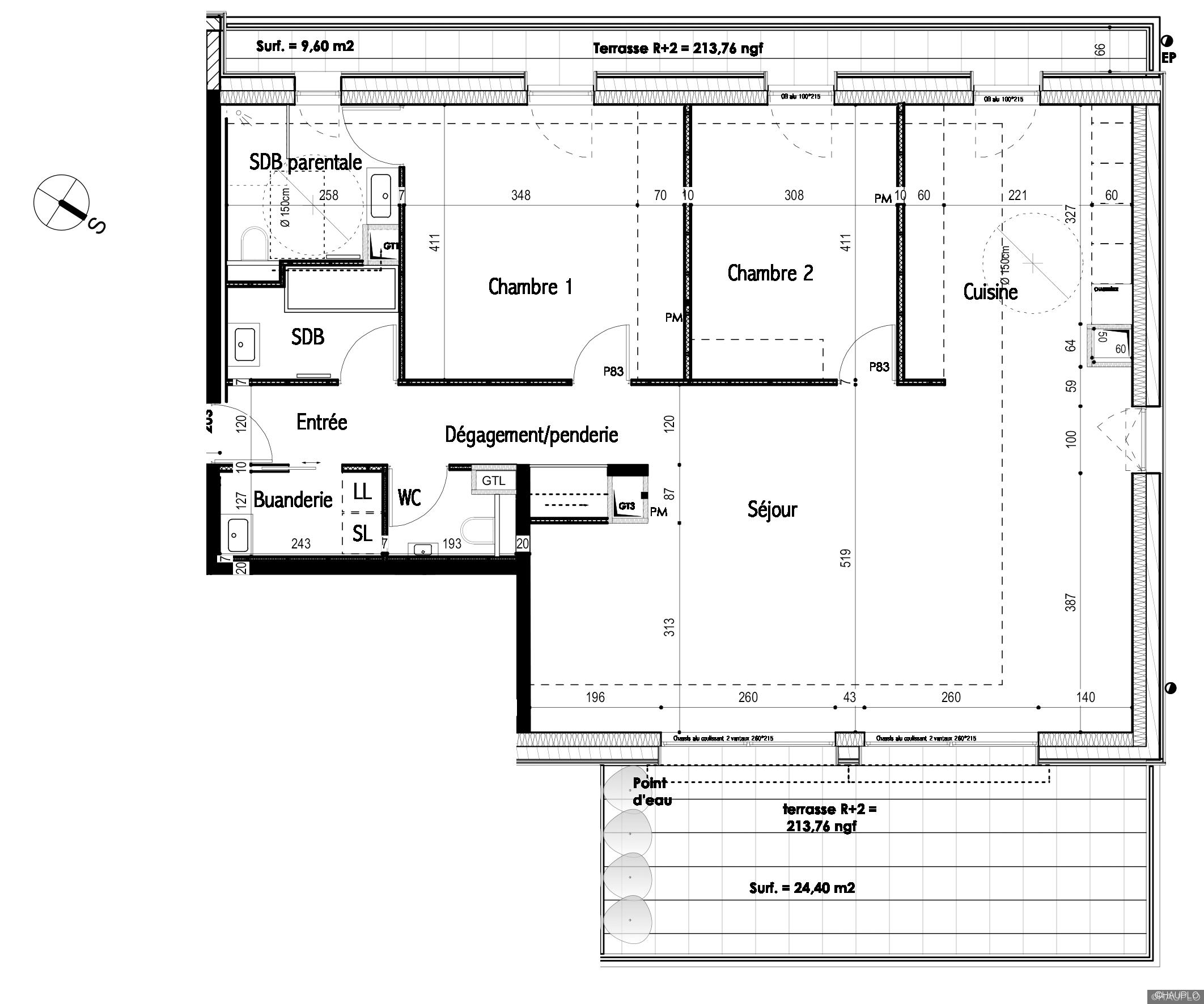
Magnifique T4 neuf à Metz au dernier niveau (R+2) de la résidence avec terrasse. L’appartement se constitue d’une partie séjour qui s’ouvre sur une première terrasse accessible par deux baies coulissantes, d’une cuisine semi-ouverte s’ouvrant sur une seconde terrasse. Cet appartement comprend deux belles chambres, dont une suite parentale comprenant une salle d’eau qui s’ouvre sur la seconde terrasse, une salle d’eau avec douche à l’italienne, un meuble lavabo, toilettes séparées et cellier. Il dispose d’une cave, d’un emplacement vélo ainsi que de deux places de stationnement au sous-sol de la résidence.