

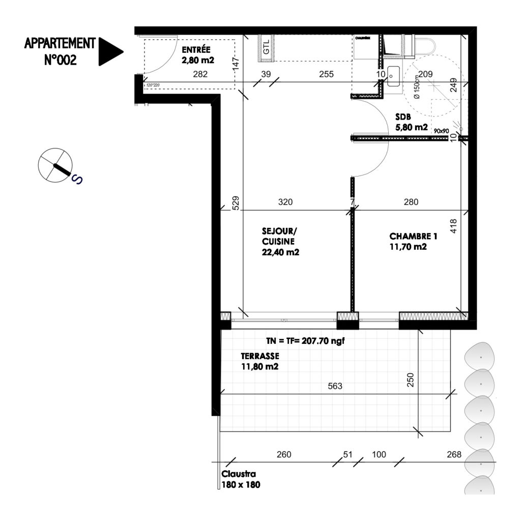
METZ – QUEULEU
Beau deux pièces T2 neuf à Metz, au rez-de-chaussée avec balcon orienté sud-est. Lumineux avec un séjour, avec son coin cuisine, ouvert sur le balcon par une grande baie coulissante. La chambre donne sur le balcon et la salle de bain comprend une douche à l’italienne. Cet appartement dispose d’un cellier, d’un emplacement vélo et d’une salle commune dans l’immeuble.

METZ – QUEULEU
Beau deux pièces T2 neuf à Metz, au rez-de-chaussée avec balcon orienté sud-est. Lumineux avec un séjour, avec son coin cuisine, ouvert sur le balcon par une grande baie coulissante. La chambre donne sur le balcon et la salle de bain comprend une douche à l’italienne. Cet appartement dispose d’un cellier, d’un emplacement vélo et d’une salle commune dans l’immeuble.

