Les terrasses du Roi Albert proposent, au cœur de Metz Queuleu, des appartements neufs bien agencés, des prestations de qualité et une situation qui contribueront au succès de votre investissement et de votre collaboration avec HAUPLO.


Les terrasses du Roi Albert proposent, au cœur de Metz Queuleu, des appartements neufs bien agencés, des prestations de qualité et une situation qui contribueront au succès de votre investissement et de votre collaboration avec HAUPLO.

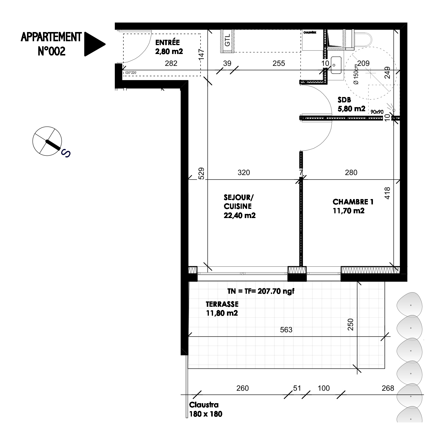
Bel appartement T2 neuf à Metz, en rez-de-jardin avec sa terrasse. Le séjour composé d’une cuisine ouverte, s’ouvre sur une grande terrasse par une baie coulissante. Cet appartement comprend une grande chambre s’ouvrant sur la terrasse, une belle salle d’eau avec douche à l’italienne, un meuble lavabo et toilettes. Il dispose d’une cave, d’un emplacement vélo ainsi que d’une place de stationnement au sous-sol de la résidence.

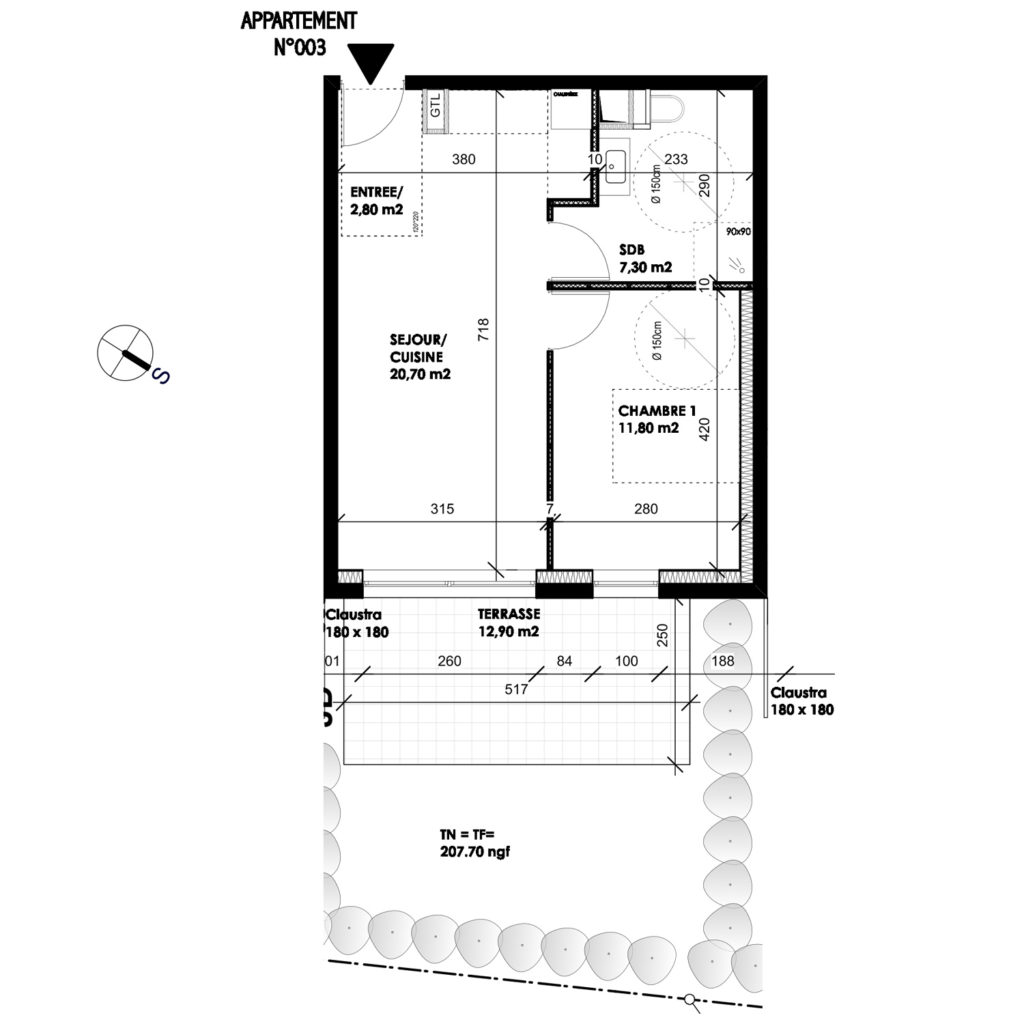
Bel appartement T2 neuf à Metz, en rez-de-jardin avec sa terrasse. Le séjour composé d’une cuisine ouverte, s’ouvre sur une grande terrasse par une baie coulissante. Cet appartement comprend une grande chambre donnant accès à la terrasse, une belle salle d’eau avec douche à l’italienne, un meuble lavabo et toilettes. Il dispose d’une cave, d’un emplacement vélo ainsi que d’une place de stationnement au sous-sol de la résidence.